AK A
Projects
News
About
Contact
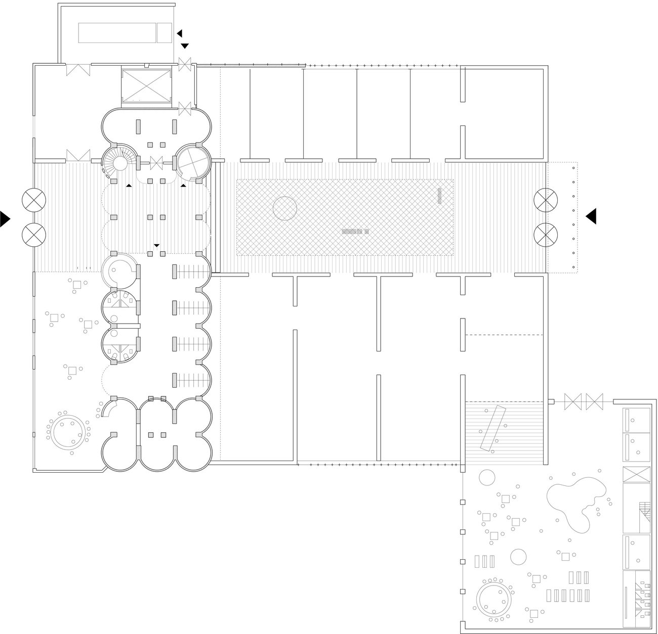
Kunstsilo
Kristiansand, Norway
Conversion of an existing grain silo into an art museum
1
/3
Project Details
Kunstsilo, Kristiansand, Norway, 2016
Client: Galmstrup
Related Projects
Art Mill
Seizure Gallery
Guggenheim