AK A
Projects
News
About
Contact
Fawe Street
Poplar, London
Re-modelling of a loft apartment
1
/2
Height and light
1
/2
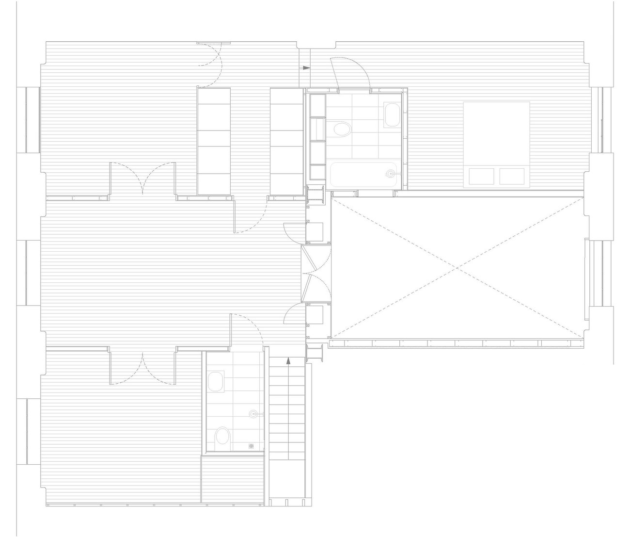
Ground floor: proposed and existing
1
/2
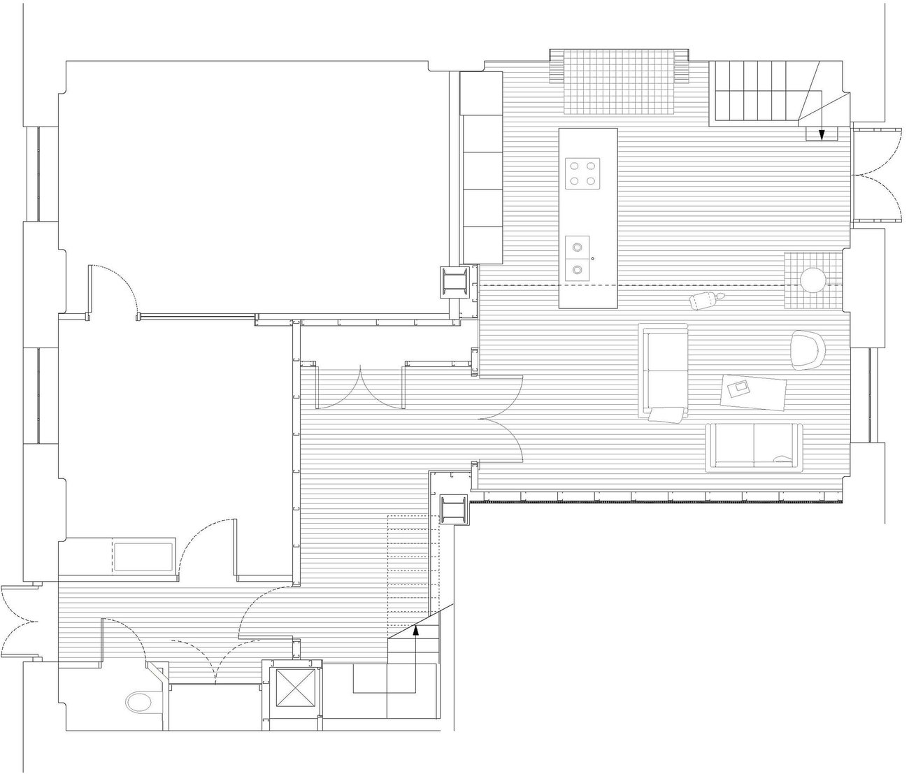
First floor: proposed and existing
1
/3
Views and enfilades
Project Details
Fawe Street, Poplar, London, 2011
Client: Private
Status: Built
Photography
Ioana Marinescu
Related Projects
Rue Delaunoy
Kendal House
Hillside Gardens