Vaughan Road
West Harrow, London

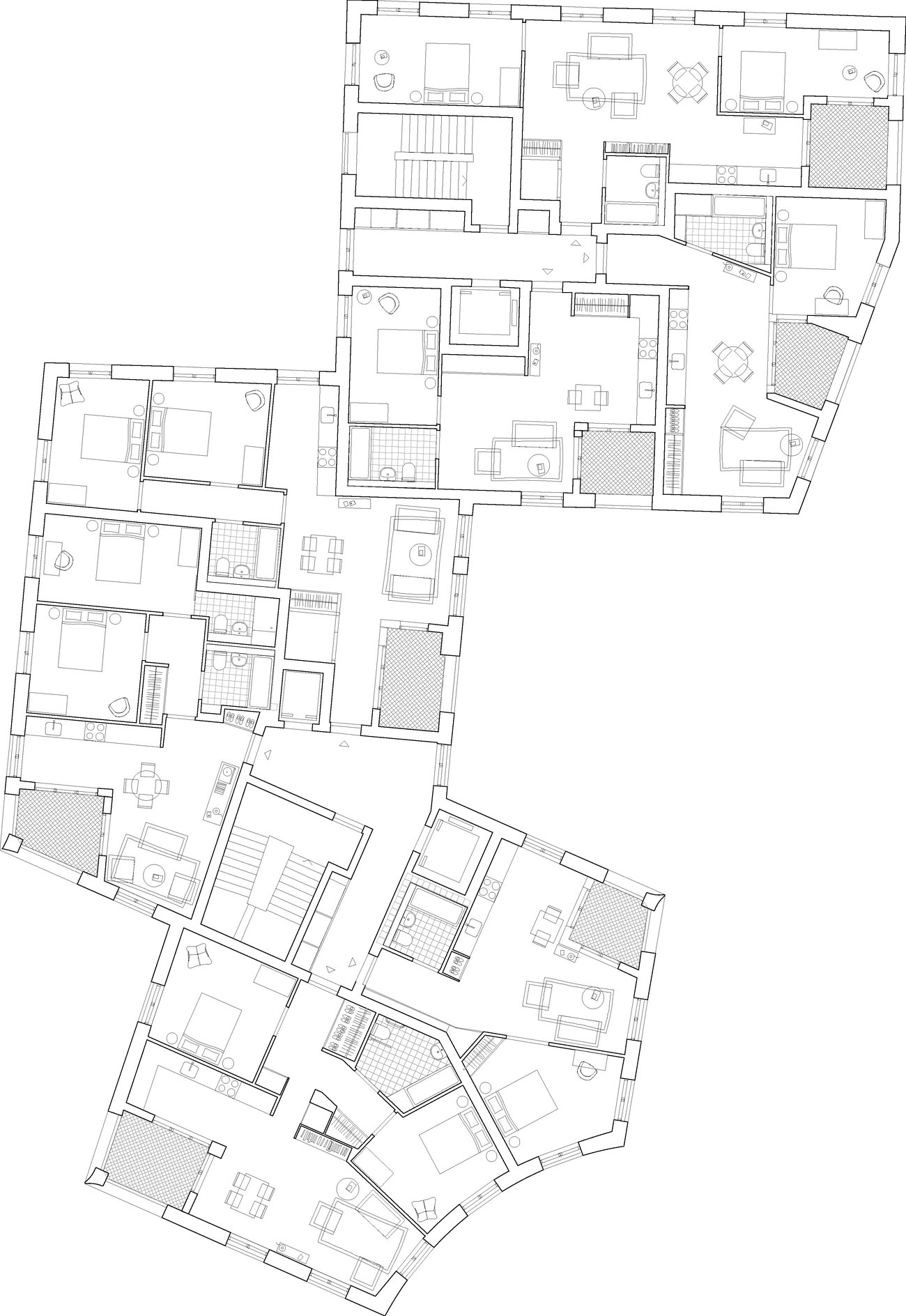
33 new homes, workspace and new public realm

'The design team not only produced an outstanding proposal for a challenging and constraint site...but also undertook extensive public engagement, building local support and addressing initial opposition against a project on a car park.'

Tobias Goevert, Head of Regeneration and Design, Harrow Council Regeneration Unit

1/2

1/5

1/2

Project Details

  • Vaughan Road, West Harrow, London, 2016–2018
  • Client: Harrow Council
  • Status: Planning approved, RIBA Stage 4

Awards

  • NLA Award: Housing 2018, Winner
  • Adams & Sutherland
  • Daisy Froud
  • Faithful+Gould
  • MLM
  • Tibbalds Planning & Urban Design

1/2

1/2

Related Projects