AK A
Projects
News
About
Contact
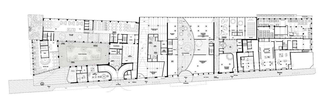
Alter Wall
Hamburg, Germany
Large mixed use urban block with retrofit hotel, retail, offices and housing
1
/4
Project Details
Alter Wall, Hamburg, Germany, 2019–2020
Client: Private
Status: Competition
Collaborators
Bernd Schmutz Architekten
Vogt Landschaft
1
/2
1
/2
1
/3
Related Projects
Dandi Hotel