AK A
Projects
News
About
Contact
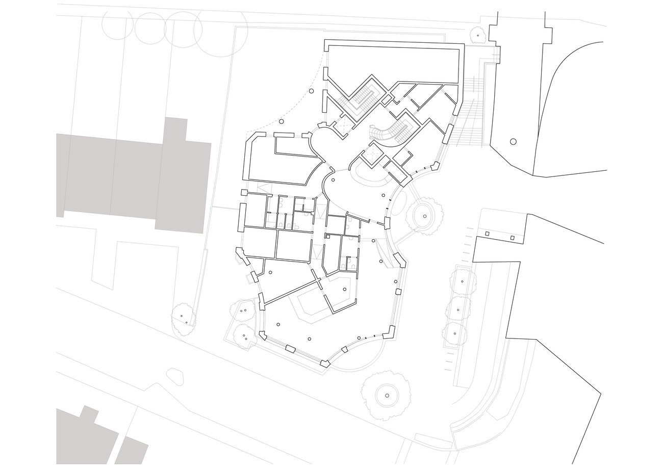
Dandi Hotel
Harrow, London
Hotel with 129 suites and rooftop restaurant, improved public realm
1
/2
Project Details
Dandi Hotel, Harrow, London, 2019–2022
Client: Dandi
Status: Planning Submitted
1
/7
Related Projects
Tower Court
South Dock Marina
Pembury Close
Vaughan Road